Attico mansardato con terrazzo nel centro di Ravenna

In vendita
Ravenna - Via Giovanni Pascoli
225.000 €
Photo 1
Appartamento
Categoria
97
m2
2
Locali
1
Camere
1
Bagni
Descrizione
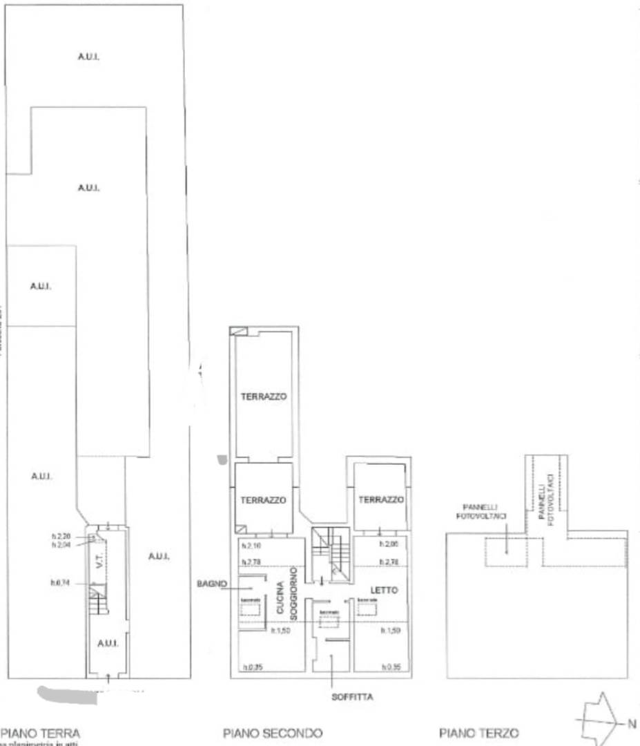
Rif.A1-151DT1 Attico mansardato con terrazzo e solarium nel centro storico di Ravenna
L’agenzia Noi Immobiliare propone in vendita un elegante attico mansardato con travi in legno a vista situato in via Giovanni Pascoli nel cuore del centro storico di Ravenna. L’immobile si trova al secondo e ultimo piano di una palazzina senza ascensore ed è stato completamente ristrutturato nel 2022 con interventi che hanno riguardato il tetto la rete fognaria gli impianti idraulici elettrici scarichi e canne fumarie tutti di nuova concezione e certificati.
L’appartamento ha una superficie totale di 97 metri quadri ed è composto da soggiorno luminoso con angolo cottura camera da letto con accesso a terrazzo privato di 12 metri quadri cabina armadio finestrata bagno con finestra Velux e ampio terrazzo di 45 metri quadri con solarium ideale per momenti di relax all’aperto.
L’immobile è dotato di impianto fotovoltaico privato da 3,84 kW con pannelli in garanzia fino al 2033 predisposizione per climatizzazione con doppio split infissi nuovi e porta blindata.
Al piano terra è presente un’area coperta privata ideale per il parcheggio di biciclette o moto.
Classe energetica E.
Spese condominiali circa 30 euro mensili.
Prezzo richiesto 225.000 euro trattabili.
Per informazioni e visite contattare 353 4079217 -Daniela T.
Caratteristiche principali
Codice:
A1-151DT1
Città:
Ravenna
Categoria:
Appartamento
Spese condominiali:
360 € / anno
Locali:
2
Camere:
1
Bagni:
1
Mq:
97
Terrazzi:
3
Piano:
2
Anno ristrutturazione:
2022
Classe energetica:
E
Stato Immobile:
Buono
Grado:
Signorile
Posizione:
Centro
Panorama:
Vista Aperta
Lati Liberi:
3
Giardino:
Comune
Arredi:
Possibilità
Tipo Soggiorno:
Soggiorno
Tipo Cucina:
Angolo Cottura
Riscaldamento:
Autonomo
Tipo Riscaldam.:
Caldaia
Tipo Impianto:
Radiatori
Fonte Energetica:
Metano
Acqua Calda:
Autonoma
Infissi:
PVC
Accessori
Aria Condizionata
Cancello Elettrico
Porta Blindata
Mappa
Cookie preference