Appartamento storico in vendita a Meldola

In vendita
Meldola - via felice orsini, 21
109.000 €
Photo 1
Appartamento
Categoria
102
m2
4
Locali
2
Camere
1
Bagni
Descrizione
Rif.A2-264SC1 Sei alla ricerca di un’abitazione che unisca storia, fascino e comfort moderno? Questa è l’occasione perfetta per te!
Noi Immobiliare propone in vendita un splendido appartamento storico, situato nel cuore di Meldola, in un palazzo dall’eleganza senza tempo.
Caratteristiche dell’immobile:
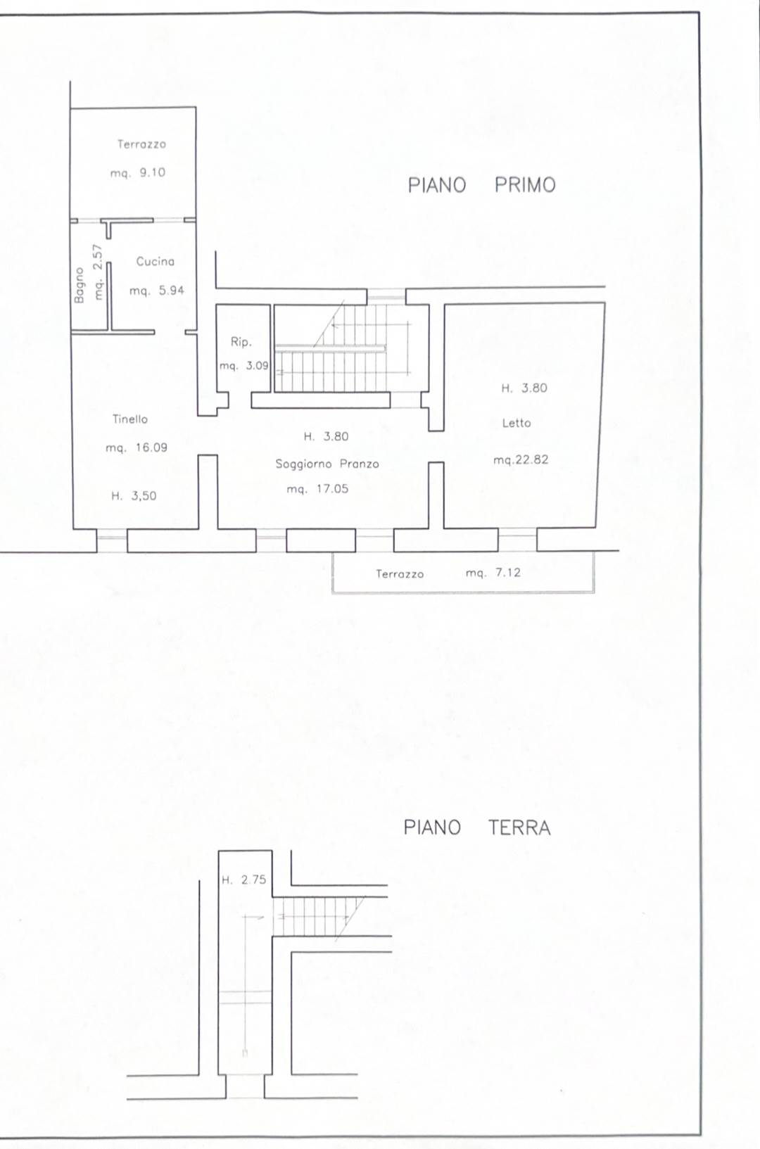
✔ Zona giorno ampia e luminosa, con soggiorno con camino e balcone con affaccio sulla piazza principale e cucina abitabile, perfetta per accogliere amici e famiglia.
✔ Bagno finestrato dotato di box doccia e vasca, ideale per il massimo relax.
✔ Due camere da letto spaziose, adatte a famiglie o per chi desidera uno studio o una stanza aggiuntiva.
✔ Pavimenti nuovi e finiture curate nei dettagli.
✔ Caldaia recente, per un’efficienza energetica ottimale e un maggiore risparmio sui consumi.
✔ Zero spese condominiali, un grande vantaggio economico.
✔ Superficie totale: 102 mq, con una distribuzione funzionale degli ambienti.
Posizione strategica:
Situato in Piazza del Mercato, nel centro di Meldola, l’appartamento offre tutti i servizi a pochi passi: negozi, scuole, trasporti e ristoranti. Una soluzione perfetta sia come prima casa che come investimento immobiliare.
Per informazioni e visite, contattare Stefania – 338 8557310
Non perdere questa occasione! Contattaci subito per prenotare una visita.
Caratteristiche principali
Codice:
A2-264SC1
Città:
Meldola
Categoria:
Appartamento
Locali:
4
Camere:
2
Bagni:
1
Mq:
102
Piano:
1
Classe energetica:
G
Stato Immobile:
Buono
Grado:
Signorile
Posizione:
Centro
Panorama:
Vista Aperta
Lati Liberi:
2
Giardino:
No
Arredi:
Possibilità
Tipo Soggiorno:
Soggiorno
Tipo Cucina:
Abitabile
Riscaldamento:
Autonomo
Tipo Riscaldam.:
Caldaia
Tipo Impianto:
Radiatori
Fonte Energetica:
Metano
Acqua Calda:
Autonoma
Accessori
Cancello Elettrico
Doppi Vetri
Rete Dati
Mappa
Video
Cookie preference