Appartamento con terrazzo e garage a Ravenna

In vendita
Ravenna - Via Cilla
359.000 €
Photo 1
Appartamento
Categoria
113
m2
4
Locali
2
Camere
2
Bagni
1
Box
Descrizione
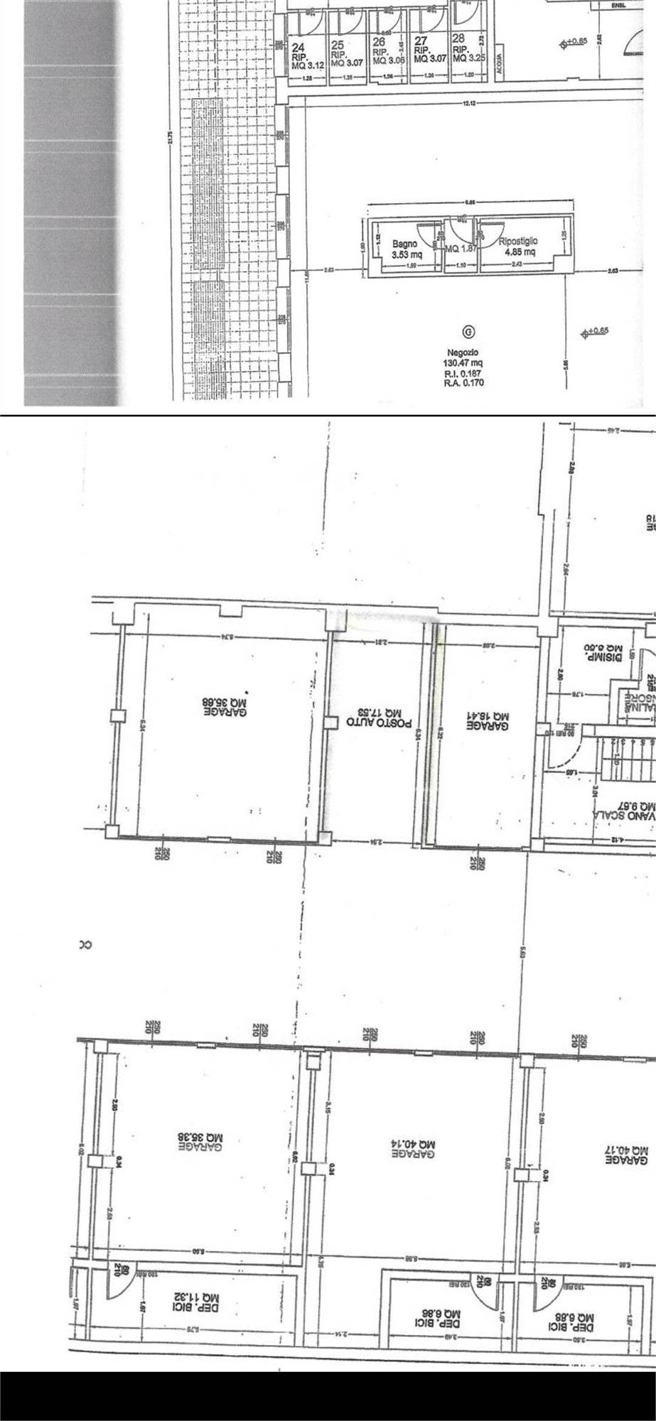
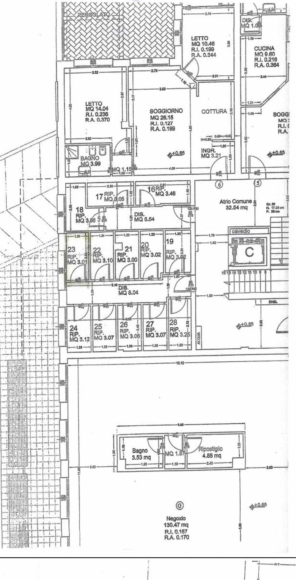
Rif.A2-272PR1 L'azienda Noi immobiliare vende a pochi passi dal centro in palazzina residenziale una elegante appartamento pari al nuovo posto al piano primo .
Ingresso in soggiorno, cucina a vista co affaccio su ampio terrazzo loggiato vivibile, ideale per pranzi all'aperto e momenti di relax, disimpegno notte, due bagni, una camera matrimoniale e una camera singola.
Al piano semi interrato ampio garage e cantina. Ottime finiture, servito da ascensore, predisposizione impianto allarme, aria condizionata in ogni stanza, pronto per essere abitato.
Non perdere l' occasione di vivere in un appartamento moderno e confortevole, situato in una delle zone più tranquille e servite di Ravenna.
Attualmente l' immobile è libero e viene venduto completo di cucina su misura.
Per informazioni e visite contattare Patrizia 347 3829014
Caratteristiche principali
Codice:
A2-272PR1
Città:
Ravenna
Categoria:
Appartamento
Spese condominiali:
1.000 € / anno
Locali:
4
Camere:
2
Bagni:
2
Mq:
113
Box:
1
Balconi:
1
Piano:
1
Classe energetica:
E
112,43
Stato Immobile:
Buono
Grado:
Signorile
Panorama:
Vista Aperta
Lati Liberi:
3
Giardino:
No
Arredi:
Possibilità
Tipo Soggiorno:
Soggiorno
Tipo Cucina:
Abitabile
Riscaldamento:
Autonomo
Tipo Riscaldam.:
Caldaia
Tipo Impianto:
Radiatori
Fonte Energetica:
Metano
Acqua Calda:
Autonoma
Infissi:
PVC
Serramenti:
Buono
Accessori
Aria Condizionata
Ascensore
Cancello Elettrico
Doppi Vetri
Rete Dati
Mappa
Cookie preference