Casa indipendente con giardino a Glorie di Mezzano

In vendita
Ravenna (Glorie di Mezzano)
215.000 €
Photo 1
Casa singola
Categoria
142
m2
6
Locali
3
Camere
2
Bagni
1
Posti auto
Descrizione
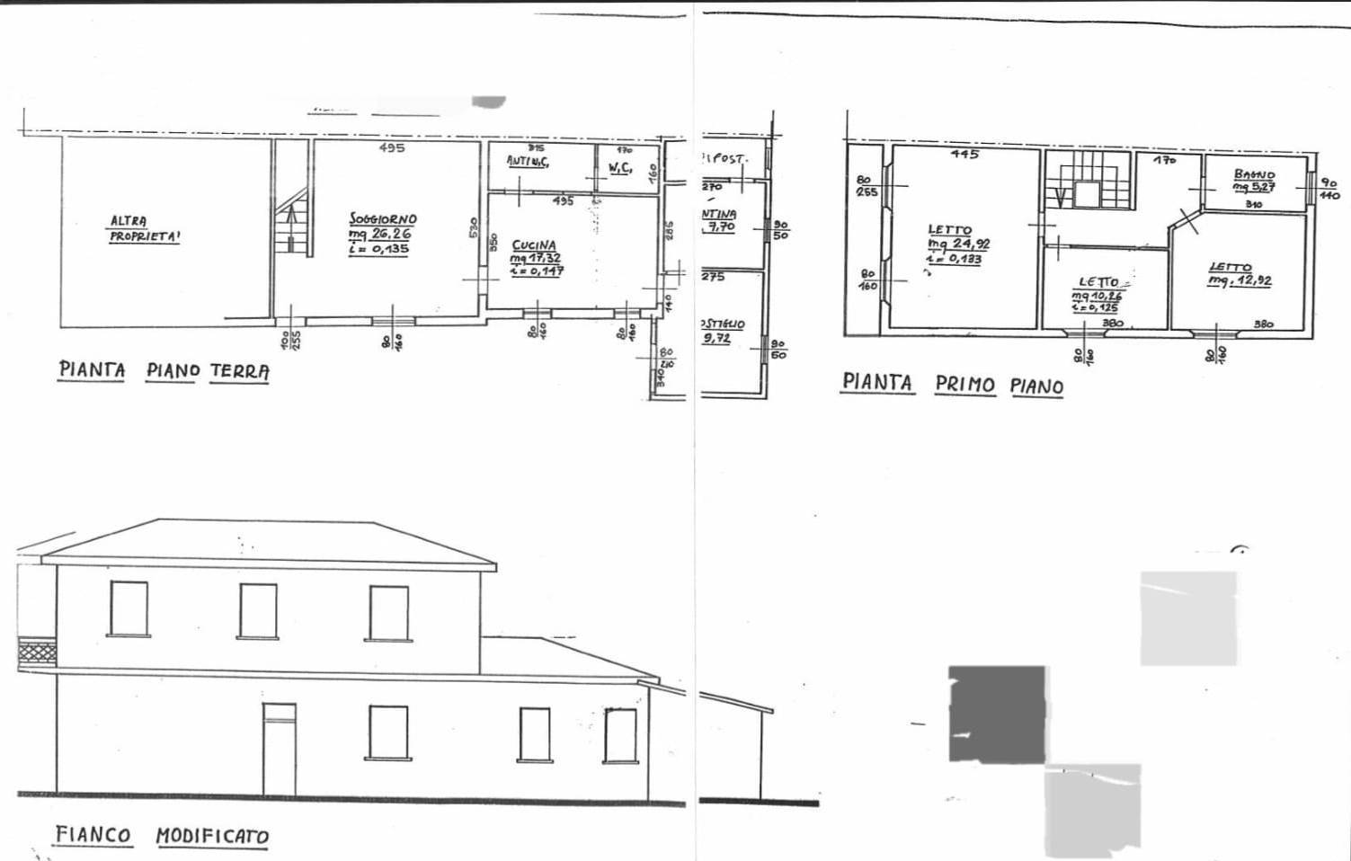
Rif.C-136PR1 L'azienda Noi Immobiliare propone in vendita in zona centrale a Glorie di Mezzano una casa abbinata di ampie dimensioni, posta al piano terra e piano primo in ottime condizioni di mantenimento.
Ingresso al piano terra dal lato giardino, ampio e luminoso soggiorno, cucina abitabile, sala da pranzo, due bagni, due ripostigli, tre camere da letto (di cui due matrimoniali). Gli ambienti, tutti particolarmente ampi, si prestano a modifiche e suddivisioni in base ai gusti ed alle necessità dei futuri acquirenti. Al piano terra, oltre al giardinetto, troviamo anche un posto auto il tutto recintato. Per informazioni e visite contattare 347 3829014 Patrizia R.
Caratteristiche principali
Codice:
C-136PR1
Città:
Ravenna (Glorie di Mezzano)
Categoria:
Casa singola
Locali:
6
Camere:
3
Bagni:
2
Mq:
142
Posti auto:
1
Piano:
Terra
Classe energetica:
G
Stato Immobile:
Buono
Grado:
Signorile
Posizione:
Centro
Panorama:
Vista Aperta
Lati Liberi:
3
Giardino:
Privato
Arredi:
Arredato
Tipo Soggiorno:
Soggiorno
Tipo Cucina:
Abitabile
Riscaldamento:
Autonomo
Tipo Riscaldam.:
Caldaia
Tipo Impianto:
Radiatori
Fonte Energetica:
Gas
Infissi:
PVC Doppio Vetro
Accessori
Aria Condizionata
Doppi Vetri
Porta Blindata
Rete Dati
Ripostiglio
Video
Cookie preference