Casolare con terreno in vendita a Gradara

In vendita
Gradara - Via Tavullia
Prezzo riservato
Photo 1
Casa singola
Categoria
333
m2
6
Locali
4
Camere
1
Bagni
Descrizione
Rif.C-222RA1 Vuoi realizzare un bellissimo sogno ?
La Noi Immobiliare ti offre un ampio casolare da ristrutturare con 8 ha di terreno agricolo che permette di farci diverse attività, anche una bella azienda agricola, un b&b o altro a Gradara.
Il terreno è servito da due pozzi che coprono le necessità idriche estive.
È già presente una vigna e con possibilità di realizzo di un uliveto.
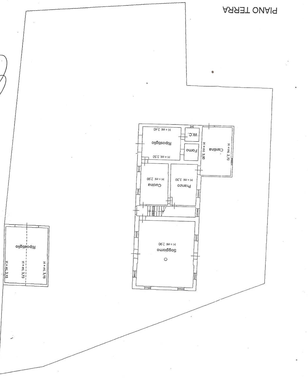
L' immobile di mq 333 comprensivo di ricovero attrezzi di mq 50 è situato su di un area di mq 2000 circa, attualmente è suddiviso al piano terra da ampio soggiorno , cucina, pranzo, ripostiglio, wc, forno e cantina; al piano superiore quattro ampie camere matrimoniali due delle quali collegate con ulteriori ripostigli .
Prezzo su richiesta.
Per informazioni contattate Roberta A. cell 3393736955
Caratteristiche principali
Codice:
C-222RA1
Città:
Gradara
Categoria:
Casa singola
Locali:
6
Camere:
4
Bagni:
1
Mq:
333
Piano:
Terra
Anno:
1950
Classe energetica:
G
Stato Immobile:
Da Ristrutturare
Grado:
Signorile
Lati Liberi:
4
Giardino:
Privato
Arredi:
Possibilità
Tipo Soggiorno:
Soggiorno
Tipo Cucina:
Abitabile
Riscaldamento:
Autonomo
Tipo Riscaldam.:
Caldaia
Tipo Impianto:
Radiatori
Fonte Energetica:
Metano
Acqua Calda:
Autonoma
Infissi:
Legno
Accessori
Doppi Vetri
Ripostiglio
Mappa
Cookie preference