Casa semi-indipendente con giardino a San Giovanni in Marignano

In vendita
San Giovanni in Marignano - Via Conca Nuova
150.000 €
Photo 1
Casa singola
Categoria
145
m2
4
Locali
2
Camere
1
Bagni
1
Box
Descrizione
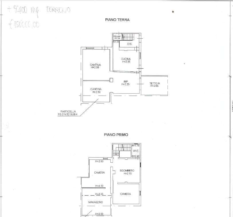
Rif.C-242RA1 Se cerchi una casa semi indipendente, da ristrutturare, con tanti particolari rustici, Noi immobiliare è pronta ad accogliervi e farvela vedere. Disposta su due livelli per un totale di 140 mt su due piani oltre a locale deposito da trasformare in garage.
L' immobile ha circa 3.000,00 mq di giardino e possibilità di acquisto di circa 1 ha di terreno agricolo.
Al piano terra , cucina, bagno e salone si può realizzare ed al piano primo ampie camere e bagno.
Per informazioni e visite contattare Roberta A. 339 3736955
Caratteristiche principali
Codice:
C-242RA1
Città:
San Giovanni in Marignano
Categoria:
Casa singola
Locali:
4
Camere:
2
Bagni:
1
Mq:
145
Box:
1
Mq Box:
28
Mq Giardino:
3000
Piano:
Terra
Anno:
1950
Classe energetica:
G
Stato Immobile:
Da Ristrutturare
Grado:
Medio
Panorama:
Vista Aperta
Lati Liberi:
3
Giardino:
Privato
Arredi:
Possibilità
Tipo Soggiorno:
Soggiorno
Tipo Cucina:
Abitabile
Riscaldamento:
Autonomo
Infissi:
Legno
Mappa
Cookie preference