Casa bifamiliare a Glorie - Ravenna

In vendita
Ravenna (Glorie di Mezzano) - via reale, 200
78.000 €
Photo 1
Casa singola
Categoria
200
m2
4
Locali
2
Camere
2
Bagni
1
Box
Descrizione
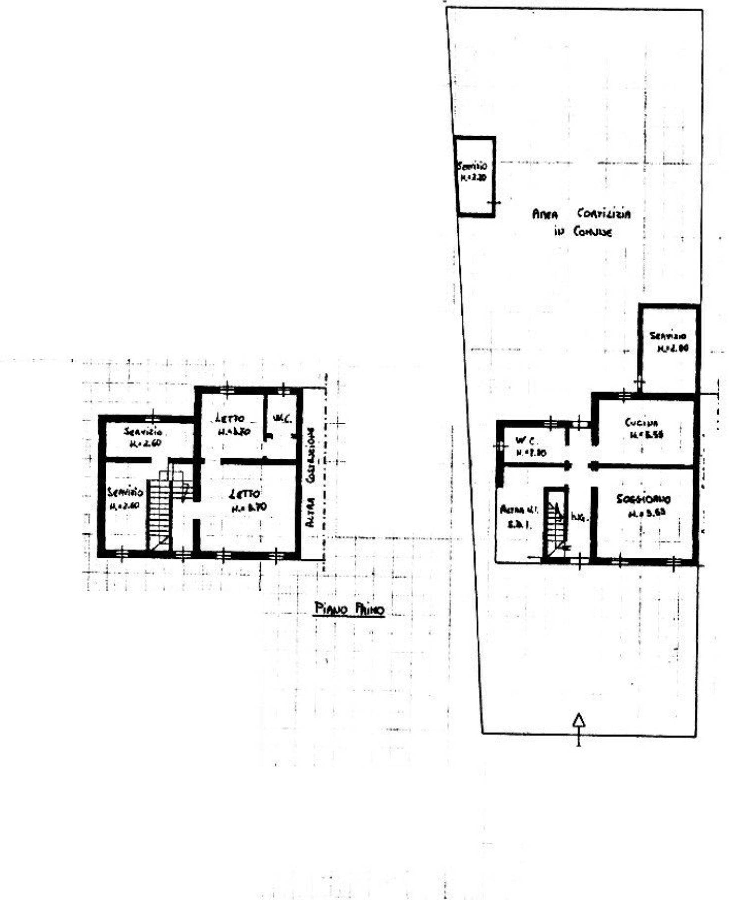
Rif. C-54 A Ravenna, in località Glorie, proponiamo in vendita casa bifamiliare terra-cielo. L'immobile è situato a pochi passi dal centro di Mezzano di Ravenna, e a 4 km da Alfonsine, vicina alla fermata dell'autobus. La casa è così configurata: al piano terra si trova un accesso indipendente con giardino, ingresso, ampia sala, bagno, lavanderia e sala da pranzo. Al secondo piano troviamo una camera con camino, uno sgabuzzino, un'ampia camera da letto matrimoniale, un ripostiglio e un secondo bagno. Completa la proprietà un ampio giardino privato che si affaccia sul retro.
Per informazioni e visite contattare 3356299011 ROBERTO
Caratteristiche principali
Codice:
C-54
Città:
Ravenna (Glorie di Mezzano)
Categoria:
Casa singola
Locali:
4
Camere:
2
Bagni:
2
Mq:
200
Box:
1
Mq Giardino:
1
Piano:
Terra
Anno:
1942
Classe energetica:
G
Stato Immobile:
Da Ristrutturare
Grado:
Signorile
Orientamento:
Nord
Lati Liberi:
3
Giardino:
Privato
Arredi:
Possibilità
Tipo Soggiorno:
Soggiorno
Tipo Cucina:
Abitabile
Riscaldamento:
Autonomo
Fonte Energetica:
Gas
Accessori
Doppi Vetri
Fibra Ottica
Mappa
Cookie preference