Bar caffetteria vicino al mare a Rivabella

In vendita
Rimini (Rivabella) - via Coletti , 105
150.000 €
Photo 1
Negozio
Categoria
108
m2
2
Locali
2
Bagni
Descrizione
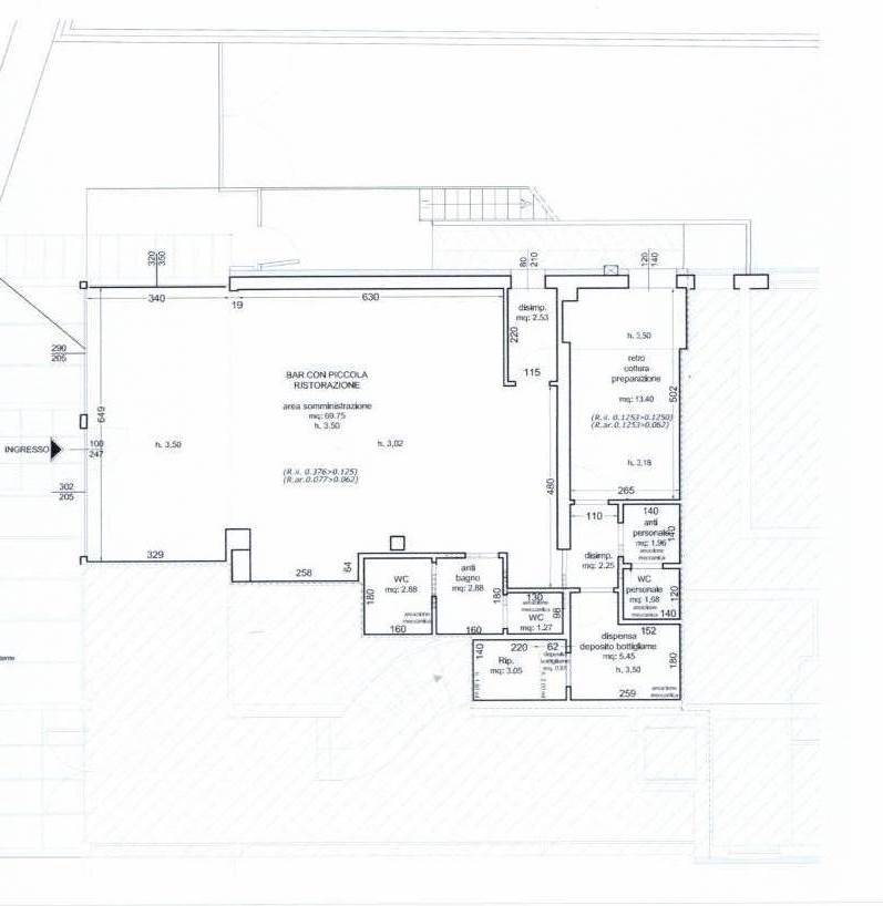
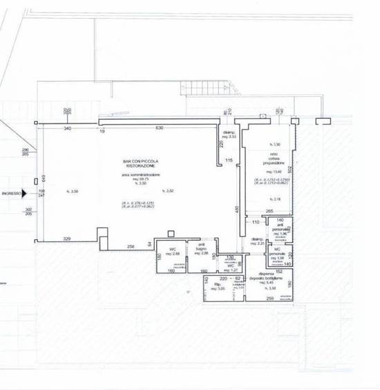
Rif.KC-15SG L'azienda Noi Immobiliare propone in esclusiva a Rivabella di Rimini, a due passi dal mare, bar caffetteria situato su strada a grande scorrimento. Il locale sviluppa una superficie di circa 78 metri quadri oltre ad ulteriori 30 metri quadri relativi a magazzino, cucina e servizi. Cucina e arredi acquistati nel 2021. Per informazioni e visite contattare 389 7808391 Sergio G.
Caratteristiche principali
Codice:
KC-15SG
Città:
Rimini (Rivabella)
Categoria:
Negozio
Locali:
2
Bagni:
2
Mq:
108
Piano:
Terra
Classe energetica:
G
Mappa
Cookie preference