Capannone di 1000 mq con uffici a Rimini Nord

In vendita
Rimini
680.000 €
Photo 1
Capannone
Categoria
1000
m2
4
Locali
2
Bagni
Descrizione
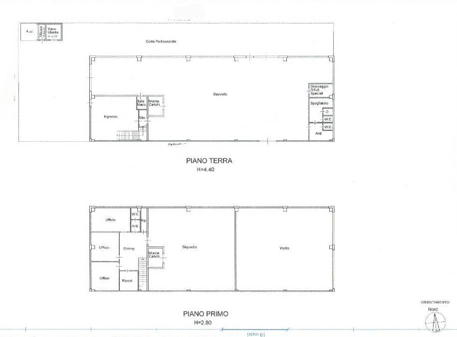
Rif.KC-61AC1 Capannone di 1000 mq su due livelli con uffici e montacarichi a Rimini Nord.
In zona industriale di Rimini Nord, Noi Immobiliare propone in vendita capannone di circa 1000 mq disposto su due livelli, ideale per attività produttive, direzionali o deposito.
Distribuzione interna:
Piano terra con altezza 4,50 m
Piano primo con altezza 2,80, quattro uffici e area magazzino
Montacarichi interno con portata 10 quintali.
Immobile in buone condizioni generali, con spazi funzionali e adattabili.
Cabina elettrica con elevata potenza disponibile e servizio del complesso.
Per informazioni e visite contattare Alex C. 3935692762

Caratteristiche principali
Codice:
KC-61AC1
Città:
Rimini
Categoria:
Capannone
Locali:
4
Bagni:
2
Mq:
1000
Piano:
Terra
Classe energetica:
G
Stato Immobile:
Buono
Grado:
Signorile
Lati Liberi:
3
Accessori
Doppi Vetri
Cookie preference